de Marcel Buciuman in Recomandari
Este vorba despre un proiect al biroului de arhitectura EANA pentru o casa construita intr-o zona rezidentiala foarte densa, ceea ce a generat o serie de restrictii.

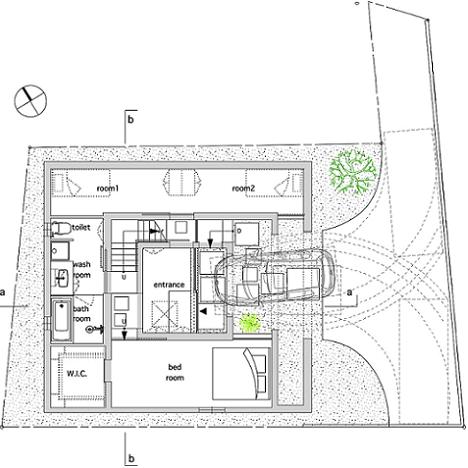
Dat fiind faptul ca accesul la drumul public se facea printr-o alee lunga, dar avand doar 2 metri latime, proprietarii casei au dorit o solutie care sa permita intoarcerea autoturismului. Acest lucru a fost posibil doar creand in fatada principala o mica curte interioara.

Ca urmare, daca suntem obisnuiti ca intrarea intr-o casa sa fie printr-un perete exterior, in cazul de fata intrarea a ajuns sa fie amplasata tocmai in mijlocul casei!



Pornind de la aceasta mica curte interioara, dar si de la solicitarea beneficiarilor de a avea o zona de zi cat mai mare, neintrerupta de pereti sau stalpi de sustinere, arhitectii au venit cu o solutie atipica: structurarea casei sub forma a 3 cuburi de dimensiuni diferite, introduse unul intr-altul.

A rezultat astfel, la ultimul nivel, o zona de zi ampla spre care lumina patrunde si dinspre curtea interioara prin peretii si pardoseala partial din sticla.


Dealtfel, acesti pereti interiori de sticla joaca un rol important si in iluminarea celorlalte spatii ale casei.




S-a renuntat la spatiile vitrate mari din fatade, care, data fiind zona aglomerata in care este amplasata casa, nu ar fi asigurat nici intimitate si nici o panorama deosebita.

In schimb curtea interioara, care a fost amenajata cu detalii ale unei gradini japoneze traditionale, creaza impresia de mai mult spatiu prin unificarea interiorului si exteriorului casei.







Arhitect: EANA
Sursa: CaseSiGradini.ro